口徑:
特點:
Q911F電動三片式球閥簡介
電動三片式球是一種(球體)繞垂直于通道軸旋轉90°的閥門,其由回轉型角行程電子式電動執行器和O型閥結構組成,屬旋轉類型高性能調節或開關閥類,接受工業自動化控制(DCS、PLC系統)儀表來源的電流信號或電壓信號的輸入輸出,可實現對工藝管路中流體介質的比例調節或二位開關控制,從而達到對流體介質的流量、壓力、溫度、液位等參數的自動化控制。電動三片式球閥(內螺紋連接球閥)及對焊連接球閥適用于PN1.0~4.0MPa,工作溫度-29~180℃(密封圈為增強聚四氟乙烯)或-29~300℃(密封圈為對位聚苯)的各種管路上,用于截斷或接通管路中的介質。選用不同的材質,可分別適用于水、蒸汽、油品、硝酸、醋酸等多種介質。
Q911F電動三片式球閥產品特點
電動三片式球閥(內螺紋連接球閥)及對焊連接球閥分為整體式(一片式)、兩段式及三段式。閥體鑄造采用臺灣引進的先進工藝,結構合理、造型美觀。閥座采用彈性密封結構,密封可靠,啟閉輕松。閥桿采用有倒密封的下裝式結構,閥腔異常升壓時,閥桿不會被沖出。二片式、三片式球閥連接形式另有對焊(BW)承插焊(SW),并均可帶國際標準ISO支架平臺和鎖定裝置。可設置90°開關定位機構,根據需要加鎖以防止誤操作,驅動方式:手動、電動、氣動。
1.三片式電動球閥流體阻力小,是所有閥類中流體阻力較小的一種,以AC220V、AC380V或DC24V電源電壓作動力,接受(4-20mA、0-10mA或1-5VDC)電流信號或電壓信號,即可控制運轉,以角行程輸出的扭矩轉動球體0~90°,就能完成啟閉動作或調節動作。
2.全電子式電動執行機構,采有機電一體化結構,具有機內伺服操作和開度信號位置反饋、位置指示、手動操作等功能,功能強、性能可靠、連線簡單,通過輸入電流信號或電壓信號,改變球芯的旋轉角度(0-90°任意角度),實現比例調節動作。
3.球芯通道平整光滑,不易沉積介質,可以進行管線式通球。結構簡單、重量輕、密封性能好。 特別適用于要求零泄漏率的場合。
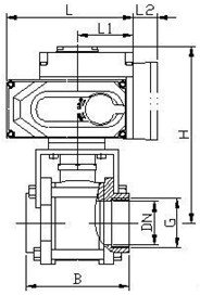
4.閥門連接尺寸及重量(虛線部分為模擬量控制盒,開關型無此尺寸)
公稱通徑 |
內螺紋連接 |
對焊連接 |
執行器選配 |
||||||||||
mm |
inch |
D |
B |
H |
管螺紋 |
B |
重量 |
尺寸(mm) |
重量 |
||||
B |
D1 |
D2 |
|||||||||||
10 |
3/8 |
10 |
60 |
57 |
3/8″ |
95 |
0.34 |
70 |
10 |
18 |
0.32 |
JTX-005 |
CH-005 |
15 |
1/2 |
15 |
75 |
68 |
1/2″ |
110 |
0.47 |
75 |
15 |
24 |
0.48 |
JTX-005 |
CH-005 |
20 |
3/4 |
20 |
80 |
70 |
3/4″ |
110 |
0.68 |
90 |
20 |
28 |
0.68 |
JTX-005 |
CH-005 |
25 |
1 |
25 |
90 |
80 |
1″ |
140 |
1.2 |
100 |
25 |
34 |
1.2 |
JTX-005 |
CH-005 |
32 |
11/4 |
32 |
110 |
85 |
11/4″ |
140 |
1.9 |
110 |
32 |
41 |
1.9 |
JTX-008 |
CH-008 |
40 |
11/2 |
38 |
125 |
100 |
11/2″ |
180 |
2.7 |
128 |
38 |
49 |
2.7 |
JTX-008 |
CH-008 |
50 |
2 |
50 |
144 |
110 |
2″ |
180 |
3.9 |
154 |
50 |
62 |
3.8 |
JTX-010 |
CH-010 |
65 |
21/2 |
64 |
186 |
130 |
21/2″ |
200 |
7.1 |
193 |
64 |
78 |
7.0 |
JTX-010 |
CH-010 |
80 |
3 |
78 |
206 |
150 |
3″ |
250 |
11.5 |
222 |
78 |
94 |
11.4 |
JTX-020 |
CH-020 |
100 |
4 |
98 |
240 |
170 |
4″ |
250 |
20.5 |
273 |
98 |
124 |
20.3 |
JTX-020 |
CH-020 |
CopyRight © 2016-2017 浙江浙控閥門有限公司 All rights reserved 浙ICP備16047258號-1